THE HANGOUT COTTAGE
CONCEPT

遊ぶことの豊かさを知っている
そんな大人が集まる家
「THE HANGOUT COTTAGE」

diagram

GLホームは、新たな挑戦として
海外デザイン住宅のトレンドの先駆けとなる
「デザートリゾートスタイル」という
新たなアメリカンライフを創造しました。
"遊びを知る大人のための家"仲間や家族が集えることが、
THE HANGOUT COTTAGE のデザイン軸。
そんな遊びや趣味をどこで楽しむか、誰と楽しむか。
豊かさを分かち合えるたまり場を演出します。
遊びや趣味と立地や環境を考え、空間をデザイン。
自然を感じ趣味を味わう豊かな空間を細部にまで
こだわり創り上げていきます。

THE HANGOUT COTTAGE
DESIGN

遊ぶことの豊かさを知っている
そんな大人が集まる家
「DESERT RESORT STYLE」 デザートリゾートスタイル

THE HANGOUT COTTAGE のデザインコンセプト。
それは自然の中に創出する遊びのある
ライフスタイル拠点。
ネイティブ(自然素材や天然色)を活かし、
自由奔放で開放的なナチュラルボヘミアンを組み合わせ、
アースカラーでまとめ上質さも融合させた、
まさに南カリフォルニアの乾燥地帯に佇む
「大人のリゾート」をイメージした建築スタイル。
4つのデザインポイントをベースに
『DESERT RESORT』スタイルを提案します。

  1. POINT 1 CIRCLE SOFA サークルソファ

    リビングの一角には大好きな仲間たちが集まれる空間
    "サークルソファ"を設置。
    ソファの内側スペースをダウンフロアにし、寛ぎも演出している。
    リゾート感満載の空間に仕上がっている。

  2. POINT 2 CENTER ARCH センターアーチ

    リビングとダイニングを繋ぐセンターアーチはデザートスタイルの
    アイコニック的デザイン。
    塗り壁で仕上げることで風合いと温かみを演出。
    サークルソファの丸みとの相性も抜群だ。

  3. POINT 3 HANGOUT ROOF ハングアウトルーフ

    外観デザインの象徴とも言える贅沢な大屋根。
    屋根の耐久性も大幅にアップし機能性も◎。
    毎日帰って来るのが楽しくなる、最高のリラックス空間を創造。

  4. POINT 4 HANGOUT PORCH ハングアウトポーチ

    リビング・ダイニングと庭を繋ぐ軒下には、
    テーブルセットも設置できるスペースを確保した
    "ハングアウトポーチ"が。
    お互いが正面を向き合って座れる空間を確保することで、
    格段に使い勝手の良いアウトドアダイニングスペースを実現。

THE HANGOUT COTTAGE
PRODUCT INTRODUCTION

ライフスタイルに合わせて自分に合った THE HANGOUT COTTAGE を見つけよう!

「DESERT RESORT STYLE」 FLAGSHIP フラッグシップ

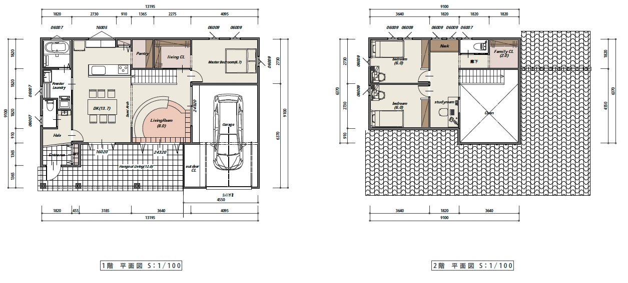
  1. デザートリゾートを満喫できる
    フラッグシップ

    THE HANGOUT COTTAGEの
    フラッグシップモデル。
    1Fは広さがあるので、大人数が集まって 人生を豊かにする時間を 堪能することのできるプラン

    MORE

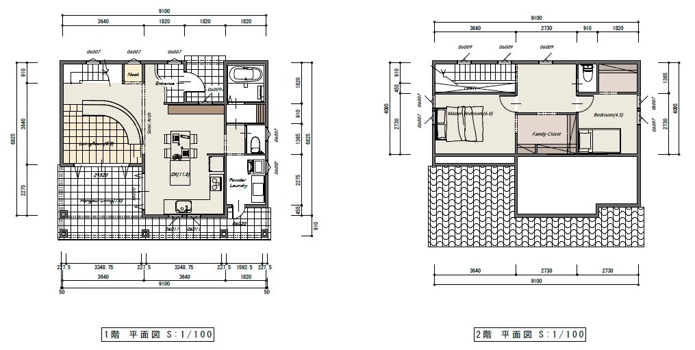
  2. 上下階でスペースを分けた
    ファミリープラン

    パブリックとプライベートを
    上下階で分けたプラン。
    皆が集まれる場所には
    サークルソファ。
    加えて、水回りを直線で結んだ
    家事動線や適材適所に配置した
    収納で使い勝手は抜群

    MORE

  3. フラッグシップの特長を生かした
    コンパクトプラン(吹き抜けあり)

    リビング、キッチンと一体的に カバードポーチ空間を楽しめる
    デザイン。
    フラッグシップモデルの 特徴はそのままに 使いやすさを重要視した コンパクトなプラン

    MORE

  4. フラッグシップの特長を生かした
    コンパクトプラン(吹き抜けなし)

    フラッグシップの特徴はそのままに、使いやすさを重視したプランに、2階に3部屋を設けた3LDKタイプ

    MORE

「DESERT RESORT STYLE」 GARDEN PARTY ガーデンパーティー

  1. 庭を活用して家族や仲間たちとリゾートライクな時間を
    楽しむためのプラン(吹き抜けあり)

    THE HANGOUT COTTAGEのコンセプトはそのままに、"ガーデンパーティー"などをお楽しみ頂けるプランをご用意。吹き抜けありのこのプランは開放的なリビング空間が特徴

    MORE

  2. 庭を活用して家族や仲間たちとリゾートライクな時間を
    楽しむためのプラン(吹き抜けなし)

    2Fに2ベッドルームとその間にはファミリークロークを設け、収納も十分に確保したファミリープラン。狭小地でもリゾートライクな豊かなライフスタイルを送れるプラン

    MORE

「DESERT RESORT STYLE」 GARAGE PLAN ガレージプラン

  1. クルマやバイク、DIYなど、ガレージで過ごす時間を
    楽しみたい方のプラン (オープン)

    THE HANGOUT COTTAGEにビルトインガレージを備えたプラン。大切な愛車・バイクなどをガレージに格納することが可能。開放的なガレージでDIY作業も楽しめます。

    MORE

  2. クルマやバイク、DIYなど、ガレージで過ごす時間を
    楽しみたい方のプラン (クローズ)

    こちらは防犯対策などを考慮し、ガレージ部分にシャッターを備えたクローズプラン。雨風からもガレージを守る事が可能になります。

    MORE

  3. 下屋を備えた、開放的なガレージ空間が魅力の
    下屋・オープンプラン

    下屋とは、母屋の屋根よりも一段下がった位置に取り付けられる屋根。ハングアウトポーチにプラスして屋根下空間が広がる開放的なガレージプラン

    MORE

THE HANGOUT COTTAGE
PROJECT Overview

「家」は自分の趣味嗜好を盛り込んだ
スタイルのある遊びの空間でありたい。
生活インフラ+遊びを盛り込むことで、
より味わいのある家を創りたい。
そんな「遊ぶこと」の豊かさを知る大人に向け
あらたな家のあり方を提案します。
子供から大人まで、年齢や性別に捉われず
楽しみ方の価値観が詰まった拠点(HANGOUT)を
デザインしたいと考えます。

GL HOMEとKENROCKのコラボレーションで
誕生したプロジェクト
『THE HANGOUT COTTAGE』
「遊ぶこと」の豊かさを知っている。
そんな大人が集まる家と題し
自分と大切な人が共に豊かな人生を送るための
世界で一つの住宅を創造していきます。

※本プロジェクトは 2024年4月〜2026年3月に実施されたものです

concept

海から山まであらゆる趣味を遊びつくす
THE HANGOUT COTTAGE 建築デザイナー
岩切 剣一郎 KENICHIRO IWAKIRI

concept

「株式会社ケンロック」代表取締役
一級建築士 建築家
ライフスタイルデザイナー

「施工の現場」から設計の世界に入り
その後独学で一級建築士に。
2010 年に「カリフォルニア工務店」を立ち上げ、
得意とするカリフォルニアのライフスタイルを
住宅に落とし込み、住宅業界に
「カリフォルニアスタイル」を
提案しブームを作る。
現在は、街づくりの地方創生や
"旅するように暮らす" をコンセプトに、
多拠点生活などの別荘建築や
バケーションハウスデザインなどの
新しいライフスタイルプロデュースまで広げ
活動している。

THE HANGOUT COTTAGE
COLUMN

THE HANGOUT COTTAGE COLUMN 本気で遊ぶ大人たち

『本気で遊ぶ大人たち』の家づくりを応援しているGLホーム。
このコラムでは、日常を非日常のような
刺激的な毎日を過ごしている彼らが、
普段からどのようなライフスタイルを送っているのか、
その様子に迫るコラムです。